Kelburn

powered by Open2view.com
SOLD

Wellington
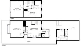
3
1
N/A
70sqm
114sqm
Wellington
Auction
Friday 11th September - 12:00PM
Harcourts Wellington City Office (unless brought forward)
proudly marketed by
Team Wellington Ltd MREINZ
Book Your Architect!
Built in the 1890s and located in quaint Ascot Street, just off Tinakori Road, this 70sqm cottage is standing well for its age. It is fairly original and in need of renovating, but this will make a dream project and it will be a joy to restore. It has plenty of original charm and includes an elevated back garden to enjoy the sun. The section is 114sqm but for a townhouse that's all you need. Currently configured into three bedrooms upstairs with living downstairs. Change it any way you want to live - it's all up to you. The location is within walking distance to the CBD and only a minute walk to Tinakori Road with its great restaurants and shops. This cottage needs a loving hand to become beautiful again so bring your dreams and reap the rewards!
Question
Please leave this field blank:
Upload by David Garratt
Wellington Central/North