Kelburn

powered by Open2view.com
SOLD

Wellington
4
2
N/A
220sqm
416sqm
Wellington
Auction
Wednesday 29th July - 1:00PM
Harcourts Wellington City Office, 54-56 Cambridge Terrace (not selling prior)
proudly marketed by
Team Wellington Ltd MREINZ
Modern Classic with Sun + Views
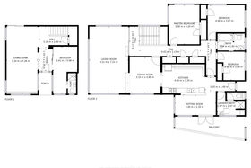
Every now and then a special opportunity comes along, and this architectural 1960s family home will appeal to those looking for good design, wonderful sun, views and potential to improve. Originally designed by Czech architect Frederick Ost, this is the first time it has come on the market since 1962. Elevated above the road and drive-on with parking for two cars, you enter the home through the downstairs area which has potential to create separate accommodation but is currently set up as up as a double bedroom, bathroom and living space. A versatile space for older teenagers or visitors. Upstairs has three double bedrooms, two bathrooms and an enviably large living space to maximise the sun and views. The dining area can be intimate for smaller gatherings or opened up to enjoy an open plan configuration. The kitchen is functional and a pleasure to cook and entertain, with incredible views. A space to be enjoyed and flows nicely to another casual dining or living space and a deck. All well designed to maximise the enjoyment of entertaining or family gatherings. Located on the hill overlooking Miramar, close to the airport and is zoned for the popular Worser Bay School, is within walking distance to Scots College and close to all the wonderful amenities of Miramar including the Roxy cinema and cafes. Heated by an internal gas central heating system, keeping it wonderfully warm. There is plenty of storage throughout. The home has huge potential to create a premium luxury property as the location, layout position and design are undeniably in place. It has class, energy and adventure. It is for people who appreciate design, and have ambitions to improve it. Or keep it as it is and transform it into your modernist gem - you will love what you can achieve with this one. The current owners have moved south so now is your opportunity. RV $980,000. Floor area 220m2 (approx). It is currently tenanted, so viewings are restricted. I hope to see you at the open home on Sundays at 12.00pm.
Question
Please leave this field blank:
Upload by David Garratt
Wellington Central/North